18/08/2023
תכנון קונסטרוקציה למבנה בית הספר אדריכלות: אילן צבי בע"מ
תכנון קונסטרוקציה ותכנון פרטי אדריכלות. יזם קונספט: "מים לטבע בע"מ" - אמיתי מי רון.
תכנון קונסטרוקציה למבנה בית כנסת אדריכלות: ממן אדריכלות ובינוי ערים בע"מ
תכנון קונסטרוקציה לפרוייקט של 4 מבני מגורים בקיסריה אדריכלות: עופר ארז
תכנון קונסטרוקציה למבנה בית כנסת ומקוואות טהרה. אדריכלות: אלתרמן שפריי אדריכלים
אדריכלות - יניב טלמון
תכנון קונסטרוציה 2 יח"ד בקיסריה. אדריכלות: רונן מידר
מבנה מגורים דו משפחתי. אדריכלות: יואב בוקר
מבנה מגורים בקציר . אדריכלות יעל זהר.
החלק הדרומי של המגרש שקע בכ-80 ס"מ - והחל לגלוש עם המדרון. בוצעה תמיכה של המדרון על ידי קידוחים וקירות תומכים, ותכנון אדריכלות וקונסטרוקציה של המתחם.
תעלות ניקוז, קירות תמך מעבירי מים.
אדריכלות - שירה בן עזרא
תכנון אדריכלות וקונסטרוקציה - מגרש קט רגל
אדריכלות - ציפורה בן עזרא
תכנון אדריכלות וקונסטרוקציה - הנגשת מבנים - פירי מעליות ורמפות (כבש) לנכים.
בטון, פלדה ועץ.
במגדל העמק - כולל אדריכלות וקונסטרוקציה. ובעתלית - קונסטרוקציה בלבד. אדריכלות: אהרון דינור.
כולל קידוח כלונסאות וטיפול ביסודות שוקעים. כיתות לימוד וחדרי מנהלה
תכנון מבני תעשיה, סככות
תכנון אדריכלות וקונסטרוקציה - סככות ושיפוץ
תכנון אדריכלות וקונסטרוקציה למבני משרדים ועובדים בבית העלמין.
תכנון אדריכלות וקונסטרוקציה של פיתוח השטח וסככת הבטון, הורדת 4 עמודי בטון והחלפתם ב- 2 עמודים וקורה. וחיזוק היסודות של סככת הבטון
חדרי טהרה, משרדים, מנהלה ומקווה
תכנון אדריכלות וקונסטרוקציה למקווה פרטי - בפרדס חנה
תכנון קונסטרוקציית פלדה ובטון לשימור המבנה.
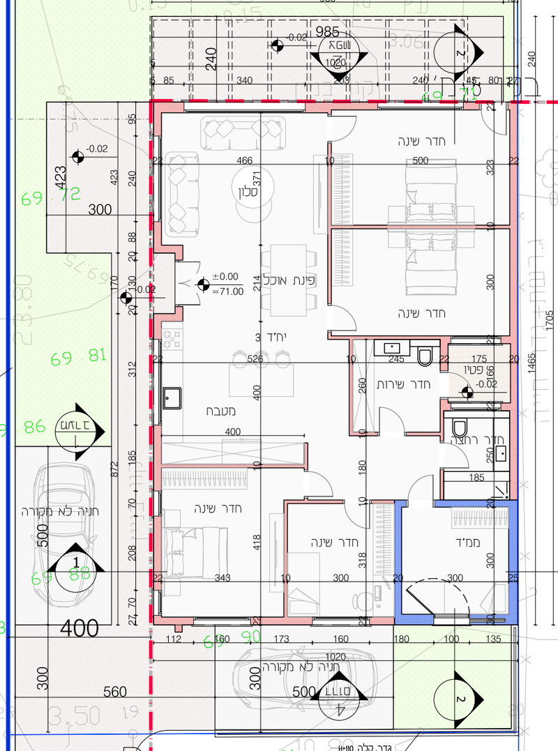
מבני מגורים. מספר יח' דיור. אדריכלות: צביה איל.
אדריכלות וקונסטרוקציה להנגשת מבנה
תכנון חיזוק יסודות, שיפוץ ובניה חדשה במבנה מגורים בקיסריה. אדריכלות: עופר ארז
בית פרטי בלהבות חביבה. אדריכלות: סיגל פרי.
תכנון אדריכלות וקונסטרוקציה
2 יח"ד באור עקיבא. אדריכלות: אפרת מאירי.
תכנון קונסטרוקציה לפרוייקט של 4 יח"ד ברכסים. אדריכלות: אריה שלום
מבנה פרטי ביישוב שקד. אדריכלות: צביה איל.
מבנה פרטי בפרדס חנה. אדריכלות: דנה מריזן
תכנון קונסטרוקציה ופרטי אדריכלות לגלריה.
בית פרטי על מדרון בישוב אבן מנחם. אדריכלות: שירה בן עזרא
בניה קלה עם "מייטק" בכרמי גת. אדריכלות: נאווה פריאל.
מבנה פרטי ביישוב טל מנשה. אדריכלות: אלון בהגלי
מבנה מגורים בשקד. אדריכלות: דורון שוקר
תכנון תוספת חדרים בתוך גג רעפים בבנימינה
אדריכלות: יהודית פרלסון ונטע פרלמן
תכניות פיתוח שטח עבור קרן קיימת לישראל. חורשת רן, נחל ותיקים, גבעה 69, חץ שחור, מצפור נביה מרעי, יד נתן..
ניסור התקרה וחיזוק גג הרעפים, לצורך ביצוע עליית גג, ב-3 יח"ד בזכרון יעקב.
תוספת אולם מעל חניון קיים. אדריכלות: ממן אדריכלות בע"מ
אדריכלות: ריצ'רד מושאילוב
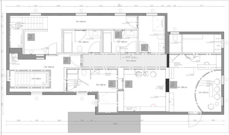
אדריכלות - בתאל לוי תכנון קונסטרוקציה למבנה המקווה, בורות טבילה ומאגר.
תכנון בפלדה ובטון של האולם לאירועים
תכנון קונסטרוקציה למקווה. אדריכלות - שמרית אזולאי
אדריכלות - יהודה אפרים
אדריכלות - יניב טלמון
אדריכלות - דנה מריז'ן
תכנון קונסטרוקציה. אדריכלות - ענת מגידוב.
תכנון קונסטרוקציה בטון ופלדה.
תכנון אדריכלות וקונסטרוקציה מקווה חב"ד
אדריכלות - אורלי רוזנברג
אדריכלות - ענת מגידוב
תכנון קונסטרוקציה לתוספת קומה, אולם שמחות וחדרי אירוח. אדריכלות - לינוי נחמיאס










































































































































































































































































